Mục lục bài viết
Đọc bản vẽ kỹ thuật không chỉ cần thiết đối với kiến trúc sư người thiết kế ra ngôi nhà mà thợ thi công và chủ đầu tư thực sự cần được hướng dẫn cách đọc bản vẽ nội thất.
Rất nhiều trường hợp công trình nội thất thi công sai quy cách khi hoàn thành khác với bản vẽ của nhà thiết kế nội thất chỉ vì thợ thi công hoặc chủ nhà lơ là không đọc bản vẽ autocad nội thất. AWE sẽ hướng dẫn đọc bản vẽ nội thất nhanh nhất cho bạn.
BẢN VẼ KỸ THUẬT NỘI THẤT HAY BẢN VẼ CHI TIẾT NỘI THẤT GỒM NHỮNG GÌ?
Trình Tự Các Bước Đọc Bản Vẽ Kỹ Thuật
Trước khi hướng dẫn đọc bản vẽ nội thất AWE muốn hướng dẫn cho bạn trình tự, cách đọc bản vẽ kỹ thuật.
Để đọc một bản vẽ kỹ thuật nội thất hay kiến trúc điều đầu tiên bạn cần đọc chính là thống kê bản vẽ chi tiết gồm những gì:
- Thành phần của bộ hồ sơ thiết kế kiến trúc gồm 3 phần chính: Kiến trúc, Kết cấu, Điện nước
- Thành phần của bộ hồ sơ thiết kế nội thất gồm 4 phần chính:
+ Xây dựng cơ bản: gồm tường, trần, sàn,vách, cửa
+ Điện và thiết bị
+ Cấp thoát nước
+ Đồ nội thất và đồ trang trí: giường, tủ, bàn, ghế, kệ, giấy dán tường, rèm cửa
Cách Đọc Bản Vẽ Kỹ Thuật Nội Thất
Các quy định chung trong cách đọc bản vẽ kỹ thuật nội thất.
- Kích thước ghi trên bản vẽ kỹ thuật nội tất là kích thước thật của vật thể, không phụ thuộc vào tỷ lệ của hình biểu diễn.
- Đơn vị đo kích thước dài là mm, bản vẽ không ghi đơn vị sau con số kích thước
- Đơn vị đo cao trình là mm và cũng không ghi đơn vị sau con số kích thước
- Đơn vị đo kích thước góc là độ và phải ghi đơn vị sau con số đo góc
|
Khóa học AutoCAD 2D và bổ kỹ thuật lập hồ sơ thi công nội thất của AWE cung cấp đầy đủ các kiến thức kỹ năng: KHÓA HỌC AUTOCAD 2D BỔ KỸ THUẬT VÀ LẬP HỒ SƠ THI CÔNG NỘI THẤT |
CÁCH ĐỌC HIỂU CÁC KÝ HIỆU VÀ ĐỌC KỸ THUẬT BẢN VẼ
Đọc Hiểu Các Chi Tiết Ký Hiệu Bản Vẽ
Tương ứng với 4 thành phần của bộ hồ sơ nội thất AWE sẽ hướng dẫn bạn đọc các ký hiệu thuộc 4 thành phần trong bản vẽ kỹ thuật nội thất.
Các ký hiệu cửa
Các ký hiệu cửa sổ
Ký hiệu các hạng mục xây dựng cơ bản: tường, trần, sàn, vách, cửa, gạch ốp
Phần lát sàn
Các ký hiệu đường nét cơ bản trên bản vẽ kỹ thuật
Ký hiệu phần bếp
Ký hiệu các thiết bị nhà tắm vệ sinh
Ký hiệu bàn ghế cơ bản
Cách Đọc Bản Vẽ Kỹ Thuật Nội Thất
Để đọc bản vẽ kỹ thuật chúng ta cần nắm rõ toàn bộ các kỹ hiệu trên bản vẽ kỹ thuật.
Hiểu quy cách chiếu của mặt đứng, mặt bằng, mặt cắt
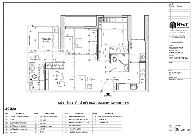
1. MẶT BẰNG: gồm mặt bằng công năng thể hiện cách bố trí các phòng, cách bố trí đồ đạc nội thất, đồ trang trí, vị trí cửa chính, cửa phụ, mặt bằng tường xây. Mặt bằng ghi các kích thước dài rộng của tường, cửa đi, cửa sổ … đê thi công.
2. MẶT ĐỨNG bản vẽ kỹ thuật nội thất: Mặt đứng là hình chiếu thẳng góc thể hiện hình dáng bên ngoài của công trình kiến trúc hay nội thất. Qua mặt đứng nhà thiết kế thể hiện hình ảnh bố trí tổng thể của ngôi nhà nhìn theo góc độ thẳng trên từng mặt với các bố trí tổng quan bao gồm tính cân đối giữa kích thước chung và kích thước riêng của ngôi nhà. Theo mức độ phức tạp của công trình thiết kế đơn giản hay phức tạp, kiến trúc sư và nhà thiết kế nội thất sẽ thể hiện số lượng bản vẽ mặt đứng nhiều hay ít để người đọc bản vẽ kỹ thuật dễ hình dung.
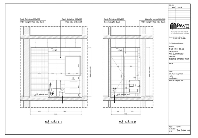
3. MẶT CẮT BẢN VẼ KỸ THUẬT NỘI THẤT: Mặt cắt là mặt phẳng tưởng tượng bị cắt thẳng đứng song song với các mặt phẳng hình chiếu cơ bản cắt ngang qua không gian trống của ngôi nhà hay vật thể. Mặt cắt của bản vẽ kỹ thuật nội thất giúp bạn hình dung các phần cấu tạo bên trong của hạng mục nội thất như ngăn kéo bên trong, các ngăn, vách bên trong, cấu tạo bên trong của sofa, bàn ghế…
Nếu bạn là người mới bắt đầu tìm hiểu về autocad bạn có thể tham gia: Khoá học autocad cơ bản đến nâng cao cho người mới bắt đầu
Cách đọc bản vẽ kỹ thuật nội thất: phần đèn điện ánh sáng
Hướng dẫn đọc bản vẽ kỹ thuật nội thất: phần trần thạch cao
Nếu bạn cần đọc bản vẽ nội thất chi tiết hãy liên hệ trung tâm AWE để được tư vấn và chia sẻ thêm tài liệu hướng dẫn đọc bản vẽ nội thất nhé.
Ngoài hướng dẫn bạn cách đọc bản vẽ kỹ thuật nội thất AWE còn mách bạn cách lập bản triển khai nội thất qua bài viết: Hướng đẫn lập bản vẽ triển khai nội thất và bổ kỹ thuật nội thất 2d
________________________________________________________
TRƯỜNG ĐÀO TẠO THIẾT KẾ NỘI THẤT AWE
Địa chỉ: Số 9 Ngõ 102, Khuất Duy Tiến, Thanh Xuân, Hà Nội
Hotline: 0932 662 186
Fanpage: facebook.com/hocthietkenoithat
Tiktok: tiktok.com/@aweeducation
Youtube: youtube.com/@truongAWE











