Mục lục bài viết
- Đánh giá nhu cầu sử dụng điện và nước
- Thiết kế điện nước nhà dân
- Học thiết kế điện nước nhà dân: Đồng hòa giải giữa thiết kế và thi công
- Lựa chọn trang thiết bị phù hợp
- Học thiết kế điện nước nhà dân: Dự toán chi phí thi công hệ thống điện nước
- Học thiết kế điện nước nhà dân: Thiết kế hệ thống điện cho nhà dân
- Học thiết kế điện nước nhà dân: Thiết kế hệ thống ống cấp và thoát nước
Học thiết kế điện nước nhà dân cần phải học rất nhiều thứ để khi đi làm, bạn sẽ có thể xử lý các vấn đề một các trơn tru nhất. Để có một ý tưởng thiết kế điện nước hoàn hảo và tránh sai sót trong quá trình thi công, bạn cần tuân theo các nguyên tắc sau đây:
Đánh giá nhu cầu sử dụng điện và nước
Trước khi bắt tay vào việc thiết kế hệ thống điện và nước cho gia đình, điều quan trọng là bạn cần Học thiết kế điện nước nhà dân kỹ về nhu cầu sử dụng và lựa chọn các trang thiết bị phù hợp. Những yếu tố quan trọng này cần được xem xét và ưu tiêu hàng đầu.
Thậm chí, có những trường hợp bạn có thể thấy không cần thiết trong thời điểm hiện tại, nhưng trong tương lai, bạn có thể cần sử dụng thêm các trang thiết bị này. Trong trường hợp này, việc lắp đặt thêm một thiết bị điện hoặc nước sau này có thể gặp khó khăn, vì đường dây điện hoặc ống nước đã được đặt sâu vào tường.
Nếu bạn quyết định muốn thêm trang thiết bị sau này, bạn sẽ phải lựa chọn đường ống nổi bên ngoài, điều này có thể làm mất đi sự thẩm mỹ cho công trình của bạn.
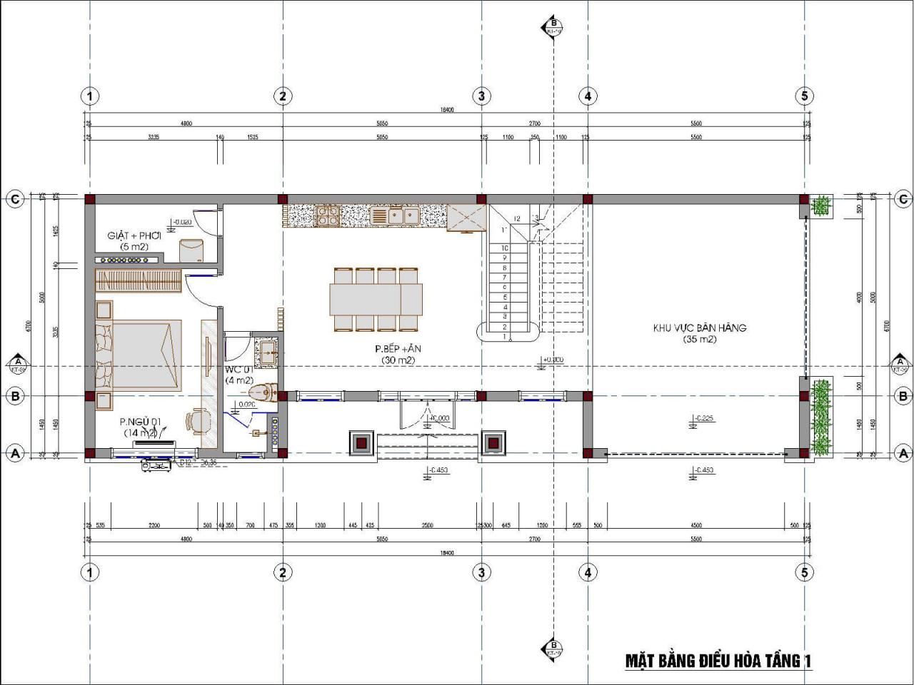
Thiết kế điện nước nhà dân
Nếu bạn đang xem xét việc thiết kế hệ thống điện và nước cho một công trình nhỏ và không đòi hỏi sự trang trí phức tạp, chỉ cần lắp đặt các yếu tố cơ bản như ổ cắm điện, đèn chiếu sáng, công tắc, thì có thể không cần thiết phải sử dụng bản vẽ.
Tuy nhiên, nếu bạn muốn tạo ra một công trình điện nước hoàn hảo và tinh tế hơn, việc sử dụng bản vẽ sẽ giúp bạn dễ dàng hình dung và thực hiện ý tưởng một cách tỉ mỉ hơn. Bản vẽ sẽ giúp bạn lập kế hoạch cụ thể cho hệ thống điện và nước. Đấy là lí do bạn nên Học thiết kế điện nước nhà dân chuyên nghiệp.
Việc thiết kế hệ thống điện nước trong ngôi nhà đóng một vai trò quan trọng không kém trong việc xây dựng. Trong một số trường hợp, sự quan trọng của việc thiết kế hệ thống này có thể gấp ba lần so với việc thiết kế tổng thể của ngôi nhà. Điều này là vì hệ thống điện nước phải được tính toán cẩn thận để đảm bảo rằng nó phù hợp với quy mô và cấu trúc của công trình, đồng thời đảm bảo sự hài hòa giữa hệ thống điện và đường ống nước bên trong căn nhà.
Bản vẽ cũng đóng vai trò quan trọng trong việc xác định công suất và nhu cầu sử dụng điện nước của gia đình. Ví dụ, nếu tổng công suất của tất cả thiết bị điện trong gia đình là 2000W, thì bạn cần phải lựa chọn các thiết bị điện có công suất tương ứng và đường ống nước có đường kính phù hợp. Sự tư vấn từ các kiến trúc sư và chuyên gia sẽ giúp bạn có bản vẽ chi tiết, tránh việc sử dụng thiết bị không cần thiết.
Ngoài ra, với bản vẽ hệ thống điện nước, nếu xảy ra sự cố như chập cháy điện hoặc rò rỉ nước, bạn có thể dễ dàng xác định vị trí lắp đặt điện và nước để có thể xử lý triệt hạnh hơn.
Học thiết kế điện nước nhà dân: Đồng hòa giải giữa thiết kế và thi công
Trong quá trình thi công, nhiều người thường tự ý thay đổi ý tưởng và dự án mà không tuân theo bản vẽ ban đầu. Khi xảy ra sự cố, họ có thể nhớ đã thay đổi gì đó, nhưng không thể chính xác xác định điều đó đã thay đổi thành thể gì. Điều này thường dẫn đến việc tăng chi phí và có thể gây thiệt hại lớn cho dự án xây dựng. Đây là một vấn đề phổ biến mà chúng ta thường gặp.
Lựa chọn trang thiết bị phù hợp
Nhiều người thường không chú ý đến việc lựa chọn trang thiết bị cho hệ thống điện và nước trong gia đình. Hệ thống này có mối tương quan chặt chẽ và có các tiêu chuẩn cụ thể về công suất và cách lắp đặt.
Ngay từ đầu, nếu bạn chọn sai thiết bị, có thể gây hỏng hóc cho toàn bộ hệ thống điện và nước trong gia đình. Ví dụ, trong hệ thống điện cho tầng 1, bạn thường sử dụng nhiều thiết bị như tủ lạnh, máy giặt, điều hòa, bếp điện… Nếu bạn sử dụng đường dây tải điện có tiết diện quá nhỏ, có thể dẫn đến hiện tượng quá tải, và sợi dây có thể trở nên nóng chảy, gây ra sự cố chập điện. Đây là một tình huống thường xuyên xảy ra ngày nay.
Vì vậy, quan trọng là phải chọn trang thiết bị phù hợp và tuân theo các tiêu chuẩn để đảm bảo an toàn và hiệu suất của hệ thống điện và nước trong gia đình.
Học thiết kế điện nước nhà dân: Dự toán chi phí thi công hệ thống điện nước
Dự toán chi phí là một yếu tố vô cùng quan trọng khi thực hiện thi công hệ thống điện nước. Mức chi phí có thể vượt quá dự toán hoặc thấp hơn, nhưng dựa vào các thiết bị và bản vẽ được kê khai, bạn cần phải dự đoán mức giá thi công và phí vật tư cần phải trả. Điều này giúp tránh tình trạng bất ngờ khi phải đối mặt với chi phí đột ngột tăng cao mà bạn không có khả năng chi trả.
Học thiết kế điện nước nhà dân: Thiết kế hệ thống điện cho nhà dân
Khi thiết kế hệ thống điện cho gia đình, bạn cần tuân theo các nguyên tắc sau đây:
- Các đường dây cấp điện không nên chạy chung với đường ống nước và nên được thiết kế nằm dọc theo cầu thang hoặc đặt trong hộp kỹ thuật.
- Khi lắp đặt đường ống dưới móng, thông qua sàn nhà hoặc trên vách tường, bạn cần đặt chúng trong ống cách điện và đảm bảo có độ dốc để thoát nước.
- Sợi dây điện cần được thiết kế và đặt theo nguyên tắc, tránh việc đi dây lộn xộn có thể gây hỏng dây khi tiến hành khoan hoặc bắn viết.
- Hạn chế tối đa sự giao cắt của các đường dây điện.
- Đối với ổ cắm điện, cần đặt cách mặt sàn ít nhất 1,5m. Trong trường hợp đặt ở góc tường, yêu cầu phải cách tường ít nhất 40cm.
- Các công tắc điện cần được đặt ở độ cao ít nhất 1,5m so với mặt sàn và không được đặt ở các vị trí có độ ẩm, như phòng tắm hoặc khu vực ẩm ướt.
- Cần lắp đặt các thiết bị bảo vệ tự động như aptomat, CB, cầu chì để ngắt điện tự động trên từng tầng của ngôi nhà.
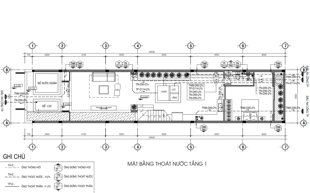
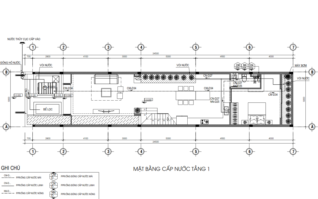
Học thiết kế điện nước nhà dân: Thiết kế hệ thống ống cấp và thoát nước
Khi thiết kế hệ thống ống cấp và thoát nước cho gia đình, cần tuân theo các nguyên tắc sau:
- Tính toán kỹ lưỡng kích thước đường ống để phù hợp với từng thiết bị sử dụng nước.
- Đối với đường ống cấp nước cho toàn bộ hệ thống gia đình, nên sử dụng ống có đường kính tối thiểu là 34mm.
- Trong quá trình lắp đặt, hạn chế sử dụng nối co lơ và gấp khúc, vì yếu tố này có thể giảm áp lực nước và dễ gây tắc nghẽn trong hệ thống cống.
- Mỗi đường nhánh nên được thiết kế để phục vụ tối đa 5 thiết bị sử dụng nước.
- Đối với hệ thống ống thoát nước, cần sử dụng đường ống có kích thước càng to càng tốt, tối thiểu là phi 60mm.
_____________________________________________________________
TRƯỜNG ĐÀO TẠO THIẾT KẾ NỘI THẤT AWE
Địa chỉ: Số 9 Ngõ 102, Khuất Duy Tiến, Thanh Xuân, Hà Nội
Hotline: 0932 662 186
Fanpage: facebook.com/hocthietkenoithat
Tiktok: tiktok.com/@aweeducation
Youtube: youtube.com/@truongAWE




