Mục lục bài viết
Hướng dẫn đọc bản vẽ gỗ nội thất, cách đọc bản vẽ mộc và cách đọc bản vẽ đồ gỗ nội thất cho người bắt đầu chưa có kiến thức gì về bản vẽ thiết kế đồ gỗ Autocad.
Đối với chuyên ngành đồ gỗ nội thất việc thực hiện sai bản vẽ hoặc người thi công không biết cách đọc bản vẽ đồ gỗ cực kỳ nguy hiểm. Bài viết này rất quan trọng hướng dẫn bạn đọc bản vẽ đồ gỗ nội thất hạn chế sai sót trong sản xuất thi công.
Các loại nét thường dùng cần hiểu khi đọc bản vẽ đồ gỗ
- Nét liền đậm: Dùng để vẽ đường bao thấy tức những đường nét mà các chúng ta nhìn thấy trên bản vẽ thiết kế đồ gỗ autocad.
- Nét liền mảnh: Dùng để vẽ đường gióng, đường kích thước, đường đáy ren, đường gạch gạch trên mặt cắt.
- Nét đứt: Dùng để vẽ đường bao khuất tức những đường nét có trên vật thể nhưng bị khuất chúng ta không nhìn thấy trên bản vẽ thiết kế.
- Nét lượng: Dùng để vẽ đường giới hạn phần bị cắt. Đường phân cách giữa hình chiếu và hình cắt.
- Nét chấm gạch mảnh: Dùng để vẽ đường tâm, trục trên bản vẽ thiết kế đồ gỗ autocad.
Học autocad cơ bản cho người mới bắt đầu
Các loại hình chiếu cần hiểu khi đọc bản vẽ thiết kế đồ gỗ AutoCAD
Bất kỳ một bản vẽ thiết kế đồ gỗ nội thất nào cũng đều được thực hiện trên bản vẽ qua các hình chiếu, có 3 loại hình chiếu đó là: hình chiếu bằng, hình chiếu đứng và hình chiếu cạnh. Với những sản phẩm có chi tiết phức tạp thì bản vẽ có thêm hình chiếu cắt để thể hiện rõ ràng đầy đủ nhất các thông số kỹ thuật, chi tiết và cấu tạo của sản phẩm.
Hướng dẫn cách đọc bản vẽ đồ gỗ nội thất cơ bản
Hướng dẫn đọc bản vẽ gỗ nội thất: tủ áo
Các thông số kích thước của tủ áo gồm chiều dài, chiều rộng, chiều sâu, kích thước các ngăn và chất liệu vật liệu của tủ áo. Khi theo cách đọc bản vẽ mộc của chúng tôi bạn có thể thấy bản vẽ tủ áo thường có mặt đứng và mặt đứng bỏ cánh, mặt cắt, mặt bằng.
Cách đọc bản vẽ đồ gỗ nội thất bạn không cần chỉ hiểu các ký hiệu trên bản vẽ mà bạn còn cần hiểu các kích thước tiêu chuẩn để nếu bản vẽ vẽ sai bạn sẽ phát hiện ra.
Độ cao tủ áo không có khối trên thường cao 2m2, nếu là tủ áo gỗ công nghiệp thì có kích thước khổ tấm gỗ công nghiệp thường mà 1220mm×2440mm, nếu chiều cao tủ cao hơn 2m4 thì phải chia làm 2 khối bên dưới. Độ rộng mỗi cánh tủ đối với tủ cảnh mở rộng không quá 500mm, độ sâu của tủ áo là 550-600mm.
Các mặt cắt của bản vẽ thiết kế đồ gỗ autocad:
- Mặt đứng bản vẽ thiết kế của tủ áo thể hiện kích thước dài, rộng, cao tổng thể của tủ và của từng cánh tủ.
- Mặt đứng bỏ cảnh bản vẽ thiết kế của tủ áo thể hiện kích thước và cấu tạo các ngăn tủ bên trong.
- Mặt bằng tủ áo cho biết tủ áo được chia làm mấy khối/ modul và kích thước cụ thể của từng khối tủ áo.
Hướng dẫn đọc bản vẽ gỗ nội thất: giường ngủ
Giường ngủ ngoài chức năng nghỉ ngơi tái tạo lại sức lao động cho con người còn có thể có thêm chức năng là hộc để đồ.
Bản vẽ thiết kế đồ gỗ autocad cho giường ngủ thường có mặt đứng, mặt bên, mặt cạnh, mặt cắt. Bản vẽ thiết kế của tủ áo cần thể hiện rõ 2 phần là vách đầu giường và thân giường. Thân giường lại bao gồm: vai giường/thành giường, thang giường và phản giường hoặc dát giường.
Trên bản vẽ thiết kế đồ gỗ autocad của giường ngủ bạn phải đọc đủ các thông tin về phụ kiện cho giường như phụ kiện ray ngăn kéo, giường thông minh thì có pit tong thủy lực đẻ nâng hạ dát giường, các phụ kiện liên kết giường là pat góc giường và pat treo thang giường.
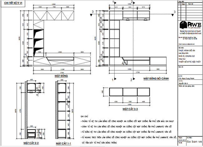
Hướng dẫn đọc bản vẽ gỗ nội thất: kệ tivi
Kệ tivi có thể là kệ tivi đơn hoặc kệ tivi kết hợp hệ tủ trang trí cho phòng khách, phòng ngủ, hệ kệ này có khá nhiều ngăn và chi tiết cấu tạo cần thể hiện đầy đủ trên bản vẽ autocad mộc.
Để thuần thạo cách đọc bản vẽ mộc cho hạng mục kệ tivi bạn cần có những thông tin sau trên bản vẽ: mặt đứng, mặt đứng bỏ cánh, các mặt cắt.
Mặt đứng của kệ tivi thể hiện chiều dài, rộng của kệ tivi và từng ngăn. Mặt cắt bản vẽ thiết kế kệ tivi thể hiện chi tiết cấu tạo bên trong từng ngăn kệ tivi.
|
Để hiểu rõ hơn về cách đọc bản vẽ đồ gỗ nội thất bạn nên đăng ký tham gia khóa học : Khóa học AUTOCAD đọc hiểu và thiết kế đồ gỗ nội thất 2D. Khóa học giúp bạn thuần thạo 6 kỹ năng:
|
________________________________________________________
TRƯỜNG ĐÀO TẠO THIẾT KẾ NỘI THẤT AWE
Địa chỉ: Số 9 Ngõ 102, Khuất Duy Tiến, Thanh Xuân, Hà Nội
Hotline: 0932 662 186
Fanpage: facebook.com/hocthietkenoithat
Tiktok: tiktok.com/@aweeducation
Youtube: youtube.com/@truongAWE




Tôi muốn tham gia khóa học . Đọc và hiểu thiết kế đồ gỗ nội thất 2 D
Chào bạn, AWE sẽ gọi tư thông tin khóa học vầ liên hệ tư vấn chi tiết nội dung khóa học cho bạn. Cám ơn bạn đã quan tâm.